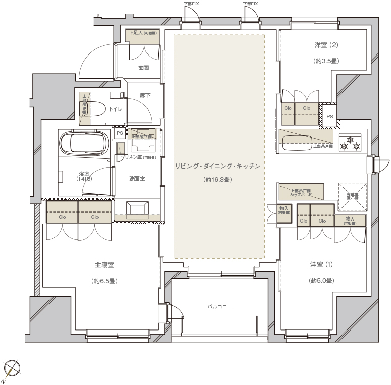
68C TYPE

3LDK

  • 住居専有面積/ 68.51㎡(約20.72坪)
  • バルコニー面積/ 4.76㎡(約1.43坪)
map
map
リビングダイニング完成予想CG
リビングダイニング完成予想CG

16畳超×南採光の開放感溢れるLDK
全室引き戸仕様で有効スペースを最大限確保

キッチン完成予想CG
キッチン完成予想CG

通風に優れ、
収納量のある独立した窓付きキッチン

※掲載の室内完成予想CGは計画段階の図面を基に描き起こしたものであり、実際とは異なります。形状の細部、設備機器、配管等は省略または簡略化の上、表現しております。今後、行政指導、施工上の理由等により、計画に変更が生じる場合があります。